Pascal ROHART
Agence immobilière à Dunkerque et ses alentours

Murs commerciaux en Zone Franche Dunkerque (59430)

172 000 €
Référence 741_78
Description

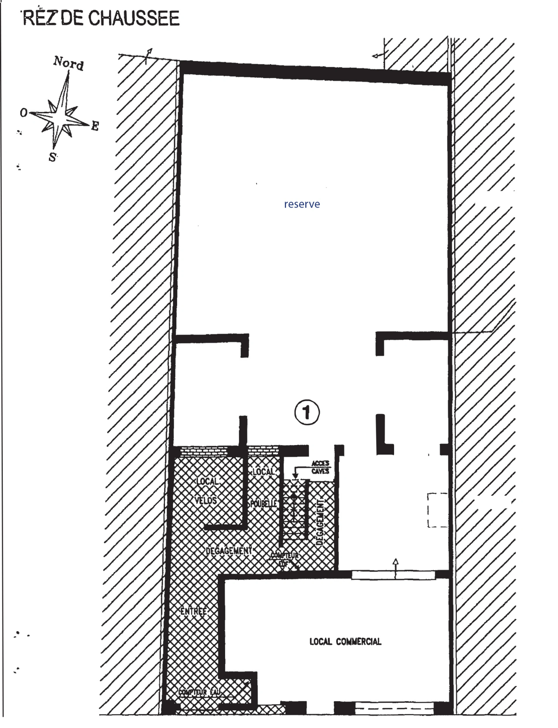
Murs commerciaux vendus loués ou libres

Situés en zone franche, profitez d'une belle opportunité d'investissement avec ces murs commerciaux, actuellement occupés par un locataire stable et fiable. Ce bien est vendu avec un bail récent, offrant une rentabilité locative immédiate et sécurisée mais peu également être libéré pour laisser place à votre activité.

Caractéristiques des murs commerciaux :


Surface totale : 148m2


Situés sur la Rue de la République, axe principal de Saint-Pol-Sur-Mer


Locataire en place, bail 3/6/9 signé fin 2023


Loyer annuel : 12900EUR


Pas de Taxe Foncière !


Belle visibilité, bon linéaire vitré, belle zone de stockage


Accès facile et proximité de toutes commodités


Adaptable à différents types d'activités commerciales


Avantages :


Situé en zone franche


Emplacement attractif, bien situé dans une zone à fort passage


Aucun travaux à prévoir


Investissement sécurisé dans un secteur dynamique


Agent Commercial

Partager le contenu sur mes réseaux :
Me contacter
Voir le téléphone
Loading...
Les informations recueillies sur ce formulaire sont enregistrées dans un fichier informatisé par Pascal ROHART pour gérer votre demande de contact. Elles sont conservées pour la durée nécessaire à la gestion de la relation client dans le respect des prescriptions légales applicables et sont destinées au responsable de la publication de ce site : Pascal ROHART.
Conformément à la loi « informatique et libertés », vous pouvez exercer votre droit d'accès aux données vous concernant et les faire rectifier en contactant Pascal ROHART pascal@imoconseil.com ou en utilisant ce formulaire. Nous vous informons de l’existence de la liste d'opposition au démarchage téléphonique « Bloctel », sur laquelle vous pouvez vous inscrire ici : https://www.bloctel.gouv.fr/
Vous ne trouvez pas votre bonheur ? Votre projet d'achat
Bilan énergétique
DPE_ passoire énergétique logement extrêmement performant logement extrêmement peu performant consommation (énergie primaire) 93 kWh/m²/an émissions* 2 kgCO2/m²/an
DPE_ * Dont émissions de gaz à effet de serre peu d'émissions de CO2 émissions de CO2 très importantes 2 kgCO2/m²/an
Pascal ROHART RSC DUNKERQUE immatriculé(e) 983 590 530.
Carte T : CPI59052024000000001. Date de délivrance : 01/02/2024. Lieu de délivrance : CALAIS. Caisse de garantie financière : NC. N° de caisse de garantie : NC. Adresse de la caisse de garantie : NC. Montant de la garantie financière : NC.
Conformément aux articles L611-1 et suivants et R612-1 et suivants du Code de la consommation, le consommateur est informé qu’il a la possibilité de saisir un ou notre médiateur de la consommation, à savoir CM2C situé 49 Rue de Ponthieu, 75008 Paris - téléphone : 0189470014 - email : contact@cm2c.net - site : www.cm2c.net
Barème d'honoraires